11878人已浏览 时间 : 2019-07-05 14:52:39
导语:这是一个非常成功的案例,北京2居改3居,实现了两个干湿分离的卫生间、主卫里面还有可以泡澡的大浴缸。夫妻两人、一儿一女、住家保姆5口之家成功提升居住体验。
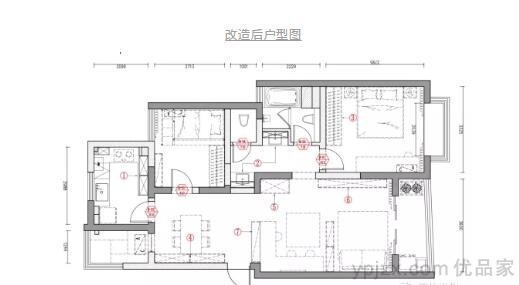
如何把2居改成3居,这要根据业主的需求进行分析。今天介绍的这个北京两居室改三居,套内面积86平米,原始户型是两居两厅一卫一厨。面积不小,但是业主家人真不少,夫妻两个、一儿一女、住家保姆5口,两居室肯定不够住。
改造难点:房间和卫生间不够用,无法满足5口人生活基本需求
业主诉求:
业主一家五口人,夫妻两人,外加两个孩子,一个男孩一个女孩,还有一个住家保姆,可是,原始房屋户型只有两个房间!
居住进化解决方案:
北阳台改造成儿童房,供家里男孩子住,次卧做成上下床,家里女孩子和保姆住一间房间。主卧依旧是夫妻二人使用。
业主诉求:
家里卫生间只有一个,5口人使用非常不方便,还想要有浴缸泡澡。
居住进化解决方案:
调整了原来的马桶位置,实现了两个干湿分离区,以及双马桶配置、淋浴区和泡澡浴缸。
北阳台空间比较吵,开发成房间会影响睡眠体验。
更换了更好的窗户,经过测试,噪音情况立马改善,卧室变得安静舒适。

原始户型图
改造后户型图
全家人的活动区,保持空间平静的同时增强功能性

实际效果图

满足基本生活需求,更要有人性化设计亮点

实际效果图

保持原有的大空间,高端大气有格调

实际效果图
床区也追求简单舒适的风格,没有过多装饰。家具灯具和装饰品的风格跟客厅保持一致,床体也细心地选择了软靠背,从根本上解决舒适度的问题。
女儿和住家保姆的房间,解决五口之家刚需
实际效果图
次卧是女儿和住家保姆生活的房间,上下床的连接用的是缓坡的柜子楼梯,保姆年纪大了,这样上下床更轻松,同时小抽屉柜也能增加房间的收纳功能;另外,贴墙放置一些矮柜,用来放书和玩具,可以作为女儿平时娱乐看书的独立小空间。

北阳台改造,多出一间房
实际效果图
北阳台的隔音差是个很大的问题,改造成卧室家里人担心会影响孩子的睡眠质量,我们经过实地研究发现,窗户质量差是造成噪音污染严重的关键点,所以在设计中用了质量好的隔音窗,解决了这个问题。
设计出来的房间效果,也让家里孩子看了,看过后都很喜欢和满意,床旁边留出空隙,放置一些书籍,孩子们都需要有自己独立的空间来学习和独处。
U型厨房,洗切烧一站式解决
实际效果图
厨区的白色膜压板门板,石英石台面,色调与其他空间的元素相匹配。台面下方留出空档放置小推车和垃圾桶,使用更灵活。
没有美丽餐边柜的餐厅不是好餐厅
实际效果图
木色的柜体在入户的视觉上有一个过渡,与餐厅和客厅的风格一致。因为餐区面积不大,没安排太多墙面收纳,加了个餐边柜,缓解餐区收纳压力。
餐边柜尺寸图
需要多多注意一下家具之间的摆放关系,不能有任何家具过大过宽以及不必要的棱角和装饰,这样会导致动线不畅。
最新评论